Nieuw-Loosdrechtsedijk 215C 1
Loosdrecht
Beschikbaar
- Deutsche Übersetzung unten -
Investeer in een luxe recreatievilla op een unieke locatie!
Wilt u profiteren van een mooi rendement op uw eigen onroerend goed, maar zelf ook heerlijk kunnen genieten van een weekend of weekje weg met vrienden of familie? Bij deze luxe recreatievilla is het allemaal mogelijk.
Een prachtig gelegen vrijstaande recreatiewoning (2022) met eigen grond, eigen water én een eigen aanlegsteiger gelegen op MarinaPark Residentie Nieuw Loosdrecht.
MarinaPark Residentie Nieuw Loosdrecht is een exclusief en kleinschalig vakantiepark. Het park bevindt zich op een unieke plek, volledig omringd door water. Vanuit de villa is er een uniek uitzicht op het water en de verzorgde tuin. Alle ingrediënten zijn aanwezig om te genieten op één van de mooiste plekken van Nederland!
De recreatiewoning is gebouwd in 2022, is modern ingericht, luxe en comfortabel, beschikt over twee slaapkamers met allebei een eigen badkamer. Schitterend aangelegde tuin met verschillende terrasjes, vanaf de aanlegsteiger liggen de Loosdrechtse Plassen aan uw voeten.
Zeer goede verhuurmogelijkheden via Marinapark Residentie Nieuw Loosdrecht. Kortom een goede investering!
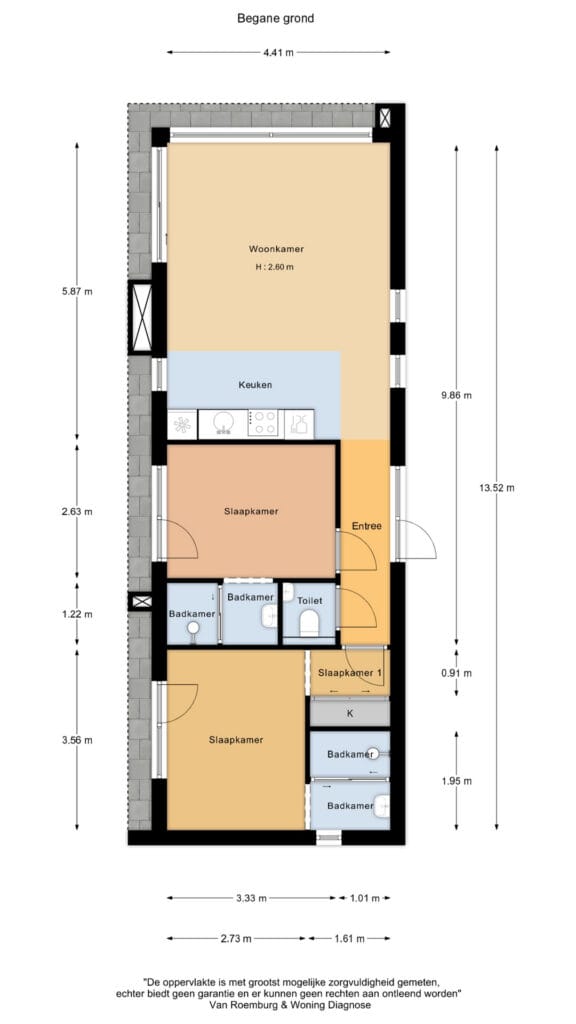
Indeling:
Entree, hal met toilet en toegang tot alle vertrekken.
Zeer lichte woon-/eetkamer met schuifpui naar het terras met een schitterende buitenhaard. Strakke moderne open keuken met inductiekookplaat met geïntrigeerd afzuigsysteem, vaatwasser, combi-oven, koel-/vriescombinatie en voldoende bergruimte in de kastjes.
Twee ruime slaapkamers met vaste kasten en ieder een eigen badkamer.
De badkamers zijn uitgerust met een wastafelmeubel en een ruime inloopdouche.
Openslaande deuren naar de tuin en airconditioning.
Parkeermogelijkheid op eigen terrein en een vrijstaande berging.
Goede investeringsmogelijkheden
Door de combinatie van de bijzondere ligging, gelijkwaardige recreatievilla’s en de verhuur- en beheerformule van MarinaPark Residentie Nieuw Loosdrecht vormt het park het absolute nieuwe level in parkrecreatie in Nederland. Een level dat garant staat voor een waardevolle, maar vooral waardevaste belegging!
Prachtige recreatievilla's in een waterrijk gebied
MarinaPark Residentie Nieuw Loosdrecht is een kleinschalig park met 42 vrijstaande gelijkwaardige recreatievilla’s te midden het waterrijkgebied van Loosdrecht. Het park is een aanwinst voor watersport- en natuurliefhebbers. Het park bestaat uit 42 luxe vrijstaande recreatievilla’s met een exclusief interieur.
Verhuurmogelijkheden
De mogelijkheid bestaat om de eigen recreatievilla het gehele jaar te verhuren, maar dat hoeft niet. Er is een directe relatie tussen reviews van gasten en de verhuurbaarheid van de recreatievilla’s. Goed beheer van het park en de recreatievilla’s is dan ook essentieel voor een goed rendement.
MarinaPark Residentie Nieuw Loosdrecht is verantwoordelijk voor het beheer en onderhoud van het park en de recreatievilla. Voor een goede afstemming tussen beheer en verhuur is er maximale controle over en invloed op alle aspecten van klanttevredenheid en profiteert u als eigenaar van een aantrekkelijk rendement.
Fiscale informatie
Bij de aankoop van een vakantiewoning in Nederland komen een aantal fiscale aspecten kijken. Ook is het mogelijk om onder bepaalde voorwaarden de BTW (gedeeltelijk) terug te vorderen. Hierbij speelt uw persoonlijke situatie een belangrijke rol. Wij adviseren u om vooraf informatie in te winnen over de juridische en fiscale consequenties die voor u van toepassing zijn.
Overname chalet met exploitatiekosten
Als een chalet wordt aangekocht die al wordt verhuurd, waarbij tevens de exploitatieovereenkomst wordt overgenomen, kan sprake zijn van een zogenaamde 'overdracht van een algemeenheid van goederen'. In dat geval is bij de aankoop geen btw verschuldigd, ook al is de woning nog niet of maximaal twee jaar in gebruik. De koper neemt dan de btw-positie en daarmee ook een eventuele nog lopende herzieningstermijn, mee over en zet deze voort. Onder voorwaarden is dan tevens een vrijstelling van overdrachtsbelasting mogelijk.
Bijzonderheden:
- Het betreft een aantrekkelijke investering; vraagprijs is inclusief BTW;
- De recreatievilla wordt verkocht inclusief gehele inventaris;
- Gelegen op eigen grond met eigen water en eigen aanlegsteiger;
- Recreatiepark is 365 dagen geopend;
- De parkkosten bedragen € 2.500,- per jaar;
- Kopers hebben geen verhuurverplichting;
- Gunstig gelegen op het het park en ten opzichte van de zon;
- Airconditioning in de slaapkamers;
- Elektrische zonwering;
- Parkeermogelijkheden op eigen terrein en elders op het park.
Uw interesse gewekt? Neem contact met ons op voor aanvullende informatie en een persoonlijke afspraak ter plaatse!
Deze informatie is door ARENS MAKELAARS met de nodige zorgvuldigheid samengesteld. Wij aanvaarden echter geen enkele aansprakelijkheid voor enige onvolledigheid, onjuistheid of anderszins, dan wel de gevolgen daarvan. Alle opgegeven maten en oppervlakten zijn indicatief. Koper heeft zijn eigen onderzoeksplicht naar alle zaken, die voor hem van belang zijn. Met betrekking tot deze woning is ARENS MAKELAARS de makelaar van verkoper. Wij adviseren u een NVM-makelaar in te schakelen, die u met zijn deskundigheid zal bijstaan in het aankoopproces. Indien u geen professionele begeleiding wenst in te schakelen, acht u zich volgens de wet deskundig genoeg om alle zaken, die van belang zijn, te kunnen overzien. De Algemene Consumentenvoorwaarden van de NVM zijn van toepassing.
---------------------------------------------------------------------------------------------
Investieren Sie in eine luxuriöse Ferienvilla an einem einzigartigen Standort!
Möchten Sie von einer ausgezeichneten Rendite für Ihre eigene Immobilie profitieren, jedoch auch selbst ein Wochenende oder eine Woche unter Freunden oder im Familienkreis genießen? In dieser luxuriösen Ferienvilla ist das alles möglich.
Ein wunderschön gelegenes freistehendes Ferienhaus (2022) mit Privatgrundstück direkt am Wasser und eigenem Steg im MarinaPark Residentie Nieuw Loosdrecht.
MarinaPark Residentie Nieuw Loosdrecht ist ein exklusiver übersichtlicher Ferienpark. Der Park befindet sich in einer einzigartigen, vollständig von Wasser umgebenen Lage. Von der Villa aus hat man einen einzigartigen Blick auf das Wasser und den gepflegten Garten. Es sind alle Voraussetzungen zur Erholung an einem der schönsten Orte der Niederlande gegeben!
Das Ferienhaus wurde 2022 gebaut, ist modern eingerichtet, luxuriös und komfortabel. Es verfügt über zwei Schlafzimmer mit jeweils eigenem Bad und über einen prächtig gestalteten Garten mit mehreren Terrassen. Vom eigenen Steg aus liegt Ihnen das Seengebiet von Loosdrecht, die Loosdrechtschen Plassen, zu Füßen.
Sehr gute Vermietungsmöglichkeiten über MarinaPark Residentie Nieuw Loosdrecht. Kurzum, eine ausgezeichnete Investition!
Einteilung:
Eingangsbereich, Eingangshalle mit WC und Zugang zu allen Zimmern.
Sehr helles kombiniertes Wohn- und Esszimmer mit Schiebetüren zur Terrasse mit einem schönen Gartenkamin. Straff verarbeitete moderne offene Küche mit Induktionskochfeld mit integriertem Dunstabzugssystem, Geschirrspüler, Kombibackofen, Kühl-Gefrierkombination und viel Stauraum in den Schränken.
Zwei geräumige Schlafzimmer mit Einbauschränken und jeweils einem eigenen Bad.
Die Badezimmer sind mit einem Waschtisch mit Unterschrank und einer geräumigen ebenerdigen Dusche ausgestattet.
Flügeltüren zum Garten und Klimaanlage.
Parkmöglichkeit auf dem eigenen Grundstück und ein freistehender Schuppen.
Ausgezeichnete Investitionsmöglichkeiten
Durch die Kombination aus besonderer Lage, den gleichwertigen Ferienvillen und dem Vermietungs- und Verwaltungskonzept von MarinaPark Residentie Nieuw Loosdrecht hat der Ferienpark ein Niveau zu bieten, das im Spitzensegment niederländischer Urlaubsparks angesiedelt ist. Ein Niveau, das eine wertvolle, aber vor allem wertbeständige Investition garantiert!
Prächtige Ferienvillen in einem Seengebiet
MarinaPark Residentie Nieuw Loosdrecht ist ein übersichtlicher Park mit 42 freistehenden, gleichwertigen Ferienvillen inmitten des Seengebiets von Loosdrecht. Der Ferienpark ist eine Bereicherung für Wassersportler und Naturliebhaber. Der Park besteht aus 42 luxuriösen, freistehenden Ferienvillen mit exklusiver Ausstattung.
Vermietungsmöglichkeiten
Es ist möglich, die eigene Ferienvilla ganzjährig zu vermieten. Die Entscheidung obliegt jedoch Ihnen. Die Vermietbarkeit der Ferienvillen hängt unmittelbar mit den Gästebewertungen zusammen. Eine gute Verwaltung des Parks und der Ferienvillen ist daher für eine gute Rendite unerlässlich.
MarinaPark Residentie Nieuw Loosdrecht ist denn auch für die Verwaltung und Instandhaltung des Parks und der Ferienvilla zuständig. Indem die Verwaltung und Vermietung gut aufeinander abgestimmt werden, lassen sich alle Aspekte der Kundenzufriedenheit optimal lenken und profitieren Sie als Eigentümer von attraktiven Renditen.
Steuerliche Informationen
Der Kauf eines Ferienhauses in den Niederlanden ist mit einer Reihe steuerlicher Aspekte verbunden. Unter bestimmten Voraussetzungen ist auch eine (teilweise) Rückerstattung der Mehrwertsteuer möglich. Dabei spielt Ihre persönliche Situation eine wichtige Rolle. Wir möchten Ihnen empfehlen, sich zuvor über die für Sie geltenden rechtlichen und steuerlichen Folgen zu erkundigen.
Erwerb eines Chalets mit Bewirtschaftungskosten
Wird ein bereits vermietetes Chalet erworben, wobei auch der Bewirtschaftungsvertrag übernommen wird, kann von einer so genannten „Übertragung einer Sachgesamtheit" die Rede sein. In diesem Fall wird keine Umsatzsteuer auf den Erwerb fällig, auch wenn die Immobilie noch nicht oder höchstens zwei Jahre lang genutzt wurde. Der Erwerber übernimmt dann die Umsatzsteuerposition und damit auch eine eventuell noch laufende Neuberechnungsfrist und führt diese fort. Unter bestimmten Voraussetzungen ist in einem solchen Fall auch eine Befreiung von der Grunderwerbsteuer möglich.
Besonderheiten:
- Es handelt sich um eine attraktive Investition; der angebotene Preis versteht sich einschließlich Mehrwertsteuer.
- Die Ferienvilla wird mit dem gesamten Inventar verkauft.
- Die Immobilie liegt auf einem eignen Wassergrundstück mit Privatbootssteg.
- Der Ferienpark ist ganzjährig geöffnet.
- Die Gebühren für die Parkverwaltung belaufen sich auf 2.500 € pro Jahr.
- Für die Käufer besteht keine Vermietungsverpflichtung.
- Günstige sonnige Lage im Park.
- Klimaanlage in den Schlafzimmern.
- Elektrische Jalousien.
- Parkmöglichkeiten auf dem eigenen Grundstück und an anderen Stellen im Park vorhanden.
Haben wir Ihr Interesse geweckt? Setzen Sie sich dann gerne mit uns für weitere Informationen und einen persönlichen Vor-Ort-Termin in Verbindung!
Diese Informationen wurden von ARENS MAKELAARS mit der gebotenen Sorgfalt zusammengestellt. Wir übernehmen jedoch keine Haftung für etwaige Unvollständigkeiten, Ungenauigkeiten oder sonstigen Unrichtigkeiten beziehungsweise sich eventuell daraus ergebende Folgen. Sämtliche Maße und Flächenangaben verstehen sich als Richtwerte. Der Käufer hat eine eigene Untersuchungspflicht in allen Angelegenheiten, die für ihn von Bedeutung sind. In Bezug auf diese Immobilie ist ARENS MAKELAARS der Makler des Verkäufers. Wir möchten Ihnen empfehlen, sich an einen NVM-Makler zu wenden, der Sie mit seinem Fachwissen bei der Kaufabwicklung unterstützen wird. Wenn Sie keine professionelle Beratung in Anspruch nehmen möchten, halten Sie sich nach dem Gesetz selbst für fachkundig genug, alle Angelegenheiten, die von Bedeutung sind, selbst überblicken zu können. Es gelten die Allgemeinen Verbraucherbedingungen (Algemene Consumentenvoorwaarden) der NVM.
Object
Ruimten
Metrage
Bezichtiging aanvragen

































