Huijbert van Schadijckln 5
Kortenhoef
Verkocht onder voorbehoud
Het betreft hier een royale twee-onder-één-kapwoning gunstig gelegen in Kortenhoef met grote garage en besloten achtertuin (zuid), kort nabij scholen en het winkelcentrum De Meenthof. De woning beschikt verder onder meer over een eigen oprit met plaats voor meerdere personenauto's, garage, vijf slaapkamers en tal van uitbreidingsmogelijkheden.
Kortenhoef is een gemoedelijk dorp en ligt in een bosrijke omgeving: het Spanderswoud met de monumentale buitenplaatsen en de groene velden van Natuurmonumenten zijn op korte afstand gelegen. Kortenhoef is omringd door de Kortenhoefse plassen, Loosdrechtse plassen en de Ankeveense plassen met volop watersportmogelijkheden.
Amsterdam en Utrecht zijn goed te bereiken (circa 25 minuten) via de provinciale weg N201 en de rijksweg A2 en A27. Hilversum en Bussum bereikt u in binnen 10 minuten.
Het winkelcentrum van Kortenhoef is op loopafstand gelegen een prima basisaanbod aan winkels met onder meer twee supermarkten, drogisterijen, Hema, opticien, bloemist, slager en bakker.
Er zijn twee basisscholen die zonder over te steken te bereiken zijn; wel zo veilig voor de kinderen. Naast de dichtstbijzijnde school ligt een speelveld met speeltoestellen en op 3 minuten lopen is speeltuin de Eekhoorn.
Indeling
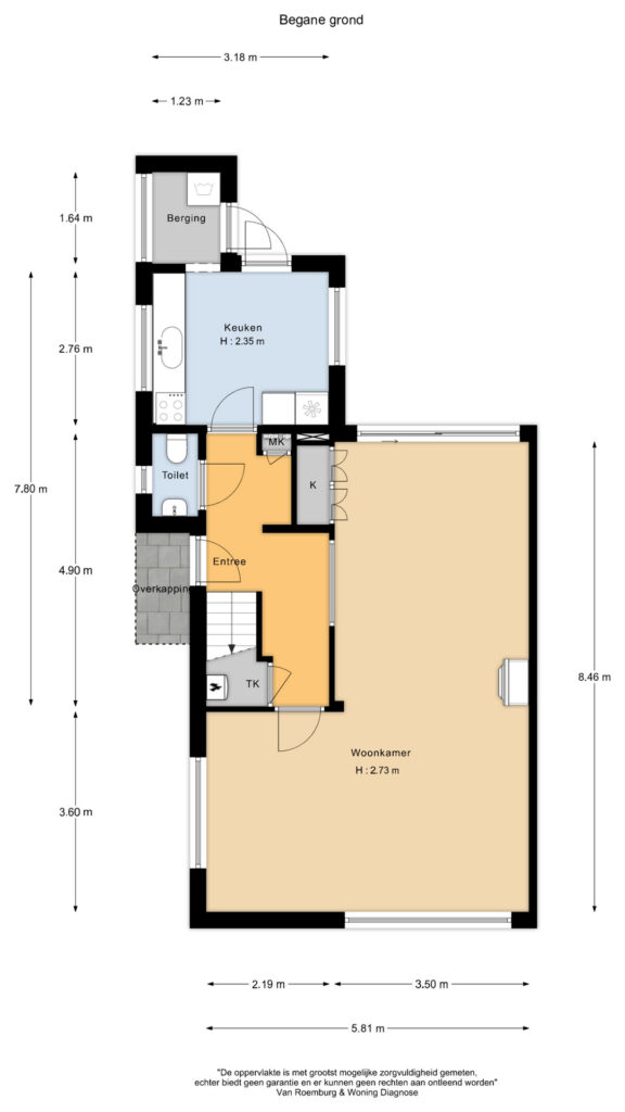
Ruime entree, toilet, meterkast, kelderkast, trap naar de eerste verdieping, toegang naar de woonkamer en toegang naar de keuken.
Ruime en lichte L-vormige woonkamer met open haard en een schuifpui naar de achtertuin.
Dichte keuken aan de achterzijde, voorzien van een 4-pitsgaskookplaat, koelkast en magnetron.
Eerste verdieping
Op de eerste verdieping zijn drie in grootte variërende slaapkamers. De slaapkamer aan de achterzijde beschikt over een balkon. Grote badkamer met inloopdouche, dubbele wastafel en een toilet.
Tweede verdieping met een overloop, kleine slaapkamer en een zeer grote slaapkamer met een dakkapel aan de achterzijde. Voormalige stookruimte met dakraam en aansluiting wasmachine.
Aan de achterzijde nabij de keuken is een kleine aanbouw met aansluitingen voor de wasmachine en de droger. De ruime, besloten achtertuin is gelegen op het zuiden en beschikt over een achterom.
Garage met een oppervlakte van wel 29 m2.
Buitenruimte
Ruime voortuin en zicht op aan de overkant gelegen plantsoen.
De oprit heeft plek voor meerdere personenauto's. Garage met sectionale (elektrische) garagedeur van circa 29 m2.
Via een deur (achterom) tussen garage en keuken is de achtertuin te bereiken.
Besloten achtertuin met zeer veel privacy.
Bijzonderheden:
- Het betreft een royaal twee-onder-één-kapwoning;
- De woonoppervlakte bedraagt circa 137 m2;
- Bouwjaar 1962;
- Dichte keuken aan de achterzijde;
- De keuken is voorzien van apparatuur;
- Grote L-vormige woonkamer met openhaard en schuifpui aan de achterzijde;
- Drie goede slaapkamers op de eerste verdieping;
- Badkamer met inloopdouche, dubbele wastafel, en toilet;
- Tweede verdieping met kleine overloop en stookruimte;
- Grote slaapkamer voorzien van wastafel en dakkapel aan de achterzijde op de tweede verdieping;
- Kleine slaapkamer op de tweede verdieping;
- Fijne achtertuin gelegen op het zuiden met achterom en zeer veel privacy;
- Kleine aanbouw aan de achterzijde met aansluiting wasmachine/droger;
- Ruime garage met elektrische deur;
- Oprit voor parkeren van meerdere personenauto’s;
- Ouderdomsclausule, asbestclausule en niet-zelfbewoningsclausule van toepassing.
Deze informatie is door ARENS MAKELAARS met de nodige zorgvuldigheid samengesteld. Wij aanvaarden echter geen enkele aansprakelijkheid voor enige onvolledigheid, onjuistheid of anderszins, dan wel de gevolgen daarvan. Alle opgegeven maten en oppervlakten zijn indicatief. Koper heeft zijn eigen onderzoeksplicht naar alle zaken, die voor hem van belang zijn. Met betrekking tot deze woning is ARENS MAKELAARS de makelaar van verkoper. Wij adviseren u een NVM-makelaar in te schakelen, die u met zijn deskundigheid zal bijstaan in het aankoopproces. Indien u geen professionele begeleiding wenst in te schakelen, acht u zich volgens de wet deskundig genoeg om alle zaken, die van belang zijn, te kunnen overzien. De Algemene Consumentenvoorwaarden van de NVM zijn van toepassing.
Object
Ruimten
Metrage
Bezichtiging aanvragen






























